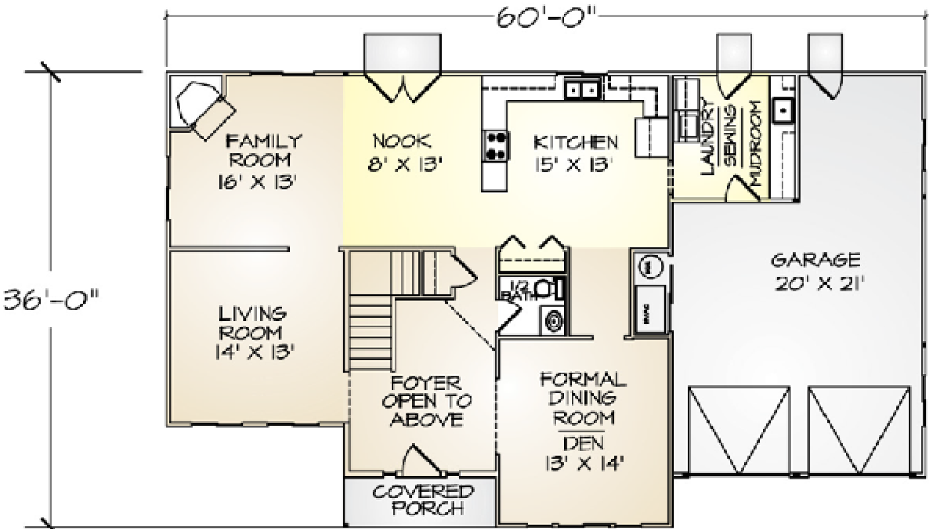
The Springfield panelized kit home features a formal entry foyer with immediate access to the formal dining and living rooms. The large family room with an informal eating area next to the kitchen is perfect for everyday family use. The master suite has a large walk-in closet off of the compartmentalized master bath area. The oversized two-car garage even has an area for a golf cart, shop, or a home office - or just more storage if needed.
FAQs:
About 6 to 8 days. Half-bay garage and more interior partitions add staging.
Often yes. Typical adds include insulation, a mini-split, dedicated circuits, and optionally a side or rear door; headers and clearances are checked in the drawings.
Yes. Wider cased openings or partial wall removals are common while maintaining circulation to the kitchen and informal eating area.
Often possible. Popular changes include a larger shower, separate water closet, and double-vanity layout; exact placements are finalized in the construction set.