Woodbridge

Woodbridge

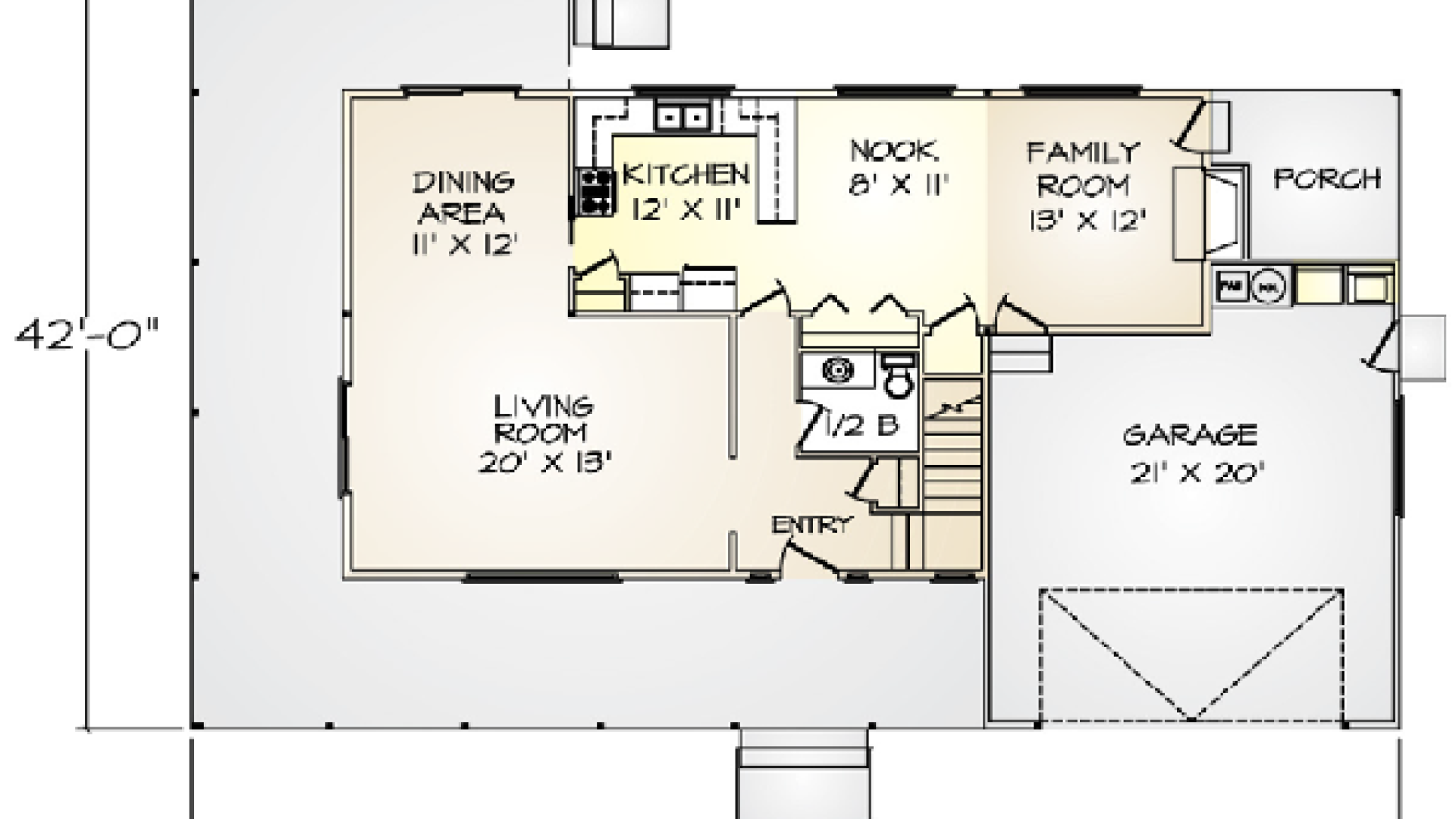
The Woodbridge panelized kit home offers space and flexibility. This home has a huge wrap-around porch that provides space for outdoor leisure activities and also protects the first floor windows from direct sun, a problem with most two-story plans. The large family room, with fireplace and adjoining eating nook, provide a convenient informal entertainment option in contrast to the more formal living and dining rooms.

FAQs:

About 6 to 8 days. Wrap-around porch beams and posts add setup time.

Panelized Kit Home Specs:

  • Total Living Space: 1,930 ft² (179 m²)
  • Bedrooms: 3
  • Bathrooms:
  • Garage: 2 Car
  • Ceiling Height: 8’
  • Covered Porch: 700 ft² (65 m²)
  • Home Plan Cost: Included (February 2026)
  • Building Kit Cost: $137,951 (February 2026)
  • Style: 2 Story
  • Minimum Payment: $6,100
Download Free Plan Review Set

Want More Information?

Invalid Input
Invalid Input
Invalid Input
Invalid Input
Invalid Input

Add to Cart

Contact Us

We will contact you and draw up requirements for the project and estimate.
Please enter your first name
Please enter your last name
Please enter a valid email address
Invalid Input
Invalid Input